Výrobci

PRO-DOMA, SE
PRO-DOMA, SE

Výběr z nabídky PRO-DOMA, SE

Jekl pozinkovaný obdelníkový 50 x 30 x 2 mm

Ocelový uzavřený profil, obdélníkového tvaru s podélným svárem, tak zvaný jekl, slabostěnný. Válcovaný za tepla v jakosti S235JR se zaručenou svařitelností. Standardní výrobní délka 6 metrů.

Jekl pozinkovaný obdelníkový 60 x 40 x 2 mm

Ocelový uzavřený profil, obdélníkového tvaru s podélným svárem, tak zvaný jekl, slabostěnný. Válcovaný za tepla v jakosti S235JR se zaručenou svařitelností. Standardní výrobní délka 6 metrů.

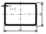
Jekl pozinkovaný obdelníkový 40 x 20 x 2 mm

Ocelový uzavřený profil, obdélníkového tvaru s podélným svárem, tak zvaný jekl, slabostěnný. Válcovaný za tepla v jakosti S235JR se zaručenou svařitelností. Standardní výrobní délka 6 metrů.

Poptejte nás